Vitajte na našom eshope aramiso.sk
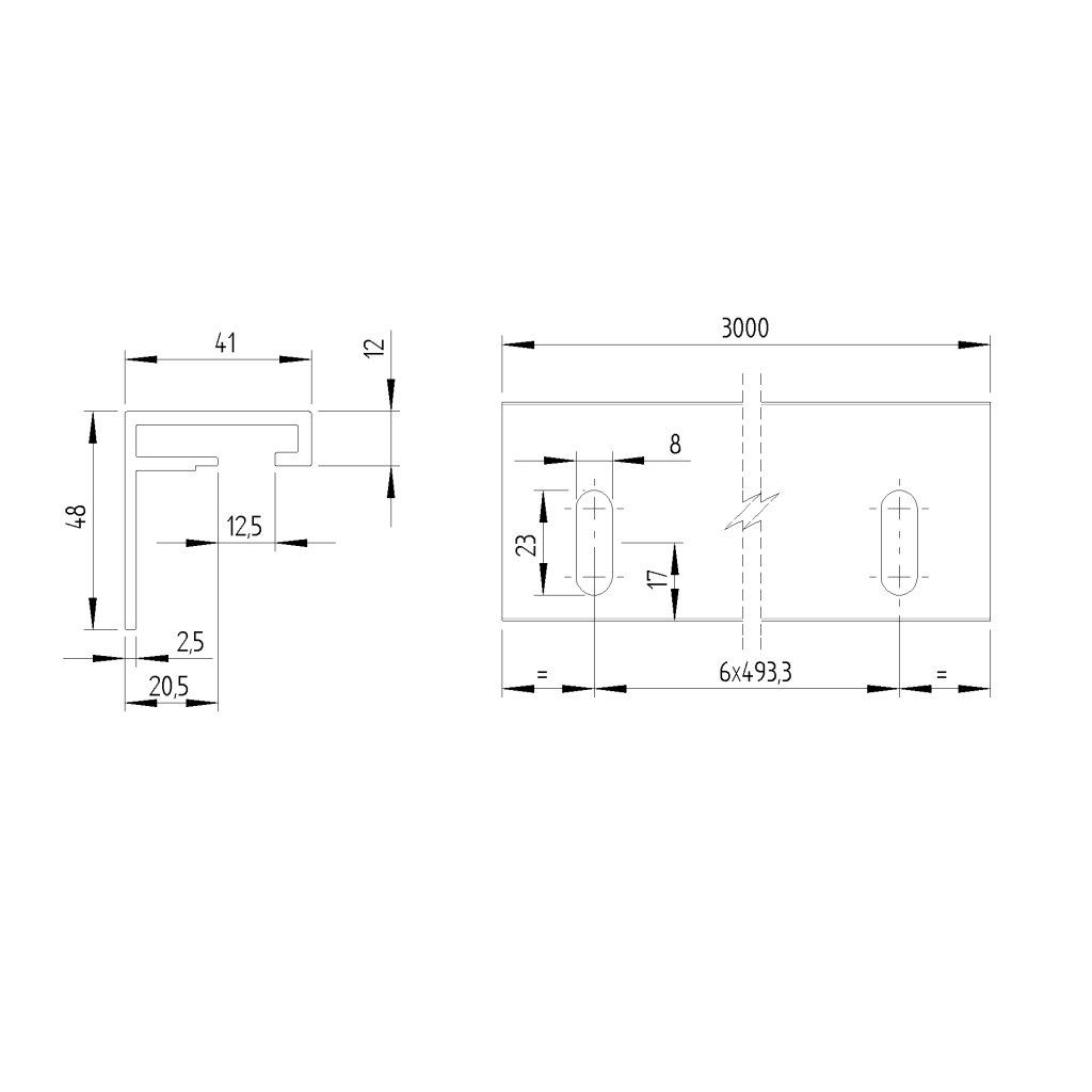
Konzola pre nylonový hrebeň H/01PVC-AL, L3m
Kód: H/01PVC-AL-K
Máme skladom 99,9 % produktov
Od pohonov cez Wi-Fi ovládače až po fotobunky. Stačí si vybrať.

Už 15 rokov zbierame skúsenosti
Naša dlhoročná prax je zárukou, že vždy nájdeme to najlepšie riešenie pre vás.
Související produkty
Detailní popis produktu
Montážna konzola pre ozubený nylonový hrebeň H/01PVC-AL pre posuvné brány. Materiál hliník. Dĺžka 3m. Bez skrutiek a podložiek.Doplňkové parametry
| Kategorie: | Montážne konzoly |
|---|---|
| Hmotnost: | 2.374 kg |
| Materiál: | Hliník |
| Povrchová úprava: | Natural |
.png)

